Народно събрание на Република България - Начало
Народно събрание
на Република България
Обществени поръчки
Обществени поръчки
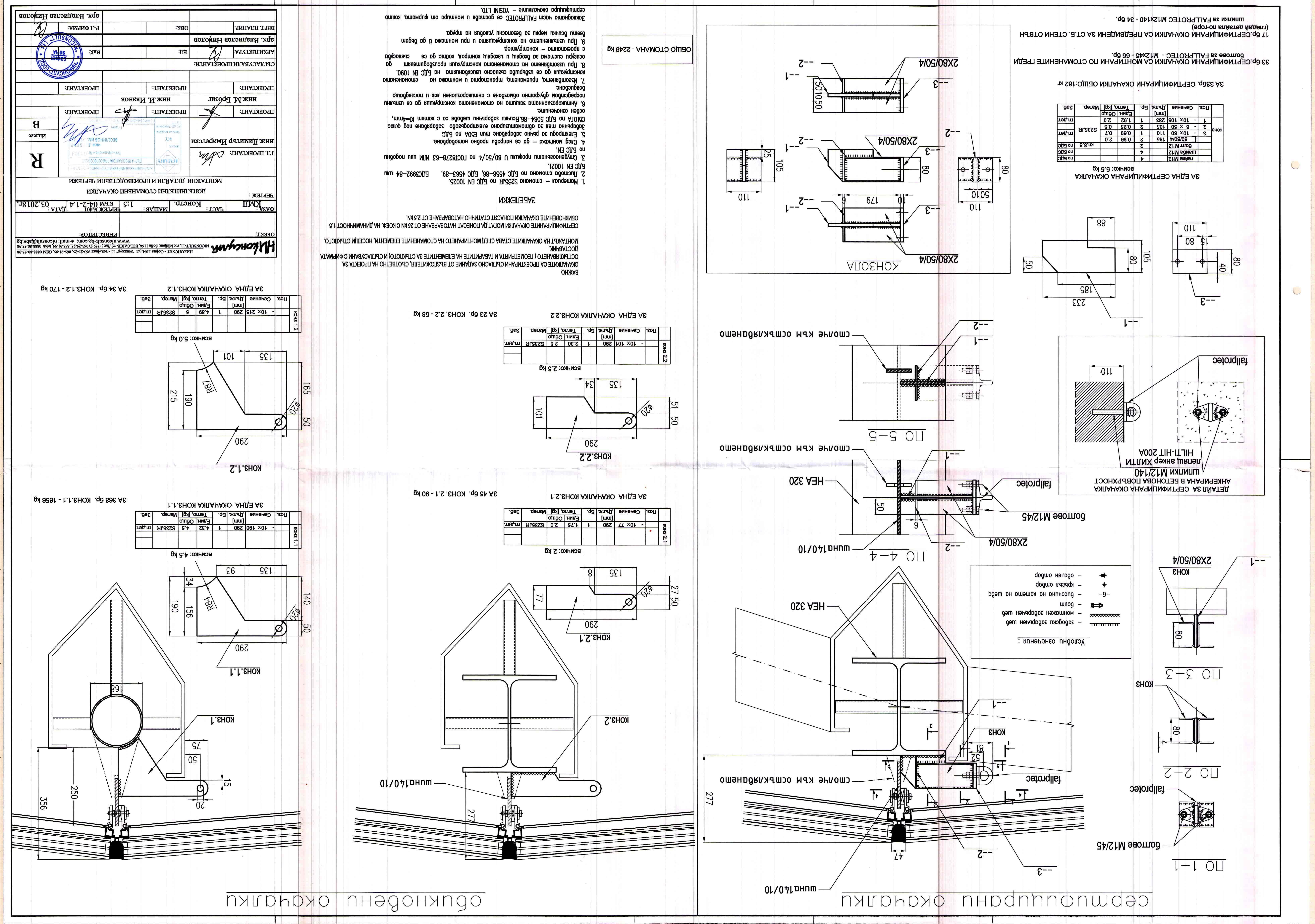
Заглавие Изпълнение на допълнителни строително-монтажни работи по части Архитектура и Електрическа, пряко свързани с изпълнението на строеж „Строително-монтажни работи (СМР) – преустройство на зала „Света София” в пленарна зала в сградата на Народното събрание, София, пл. „Княз Александър І“ № 1“
Идентификационен номер 444
Дата 27/07/2018
Вид на процедурата Договаряне без публикуване на обявление за поръчка
Номер в АОП 00728-2018-0017
Номер в РОП
Статус възложена
Текст
Документи и съобщения